Сфера дизайна
Автор проекта: компания UNISON
Участие в выставке: 2019 ЭВОЛЮЦИЯ ДИЗАЙНА
Номинация: квартира до 80 кв.м

Описание проекта

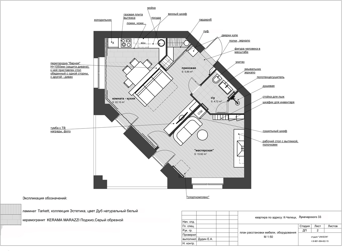
Студия с комнатой-мастерской для временного проживания.

2-комнатная квартира, которая получила новую планировку.

Год проектирования 2016.

Год реализации 2017.

Основные выразительные интерьерные средства: пестрый кирпич, декоративная штукатурка изумрудного цвета, фактура дерева, цветные фотографии, привезенные с лыжных гонок, и художестванная роспись.

Комплект авторских светильников выполнен в соавторстве в Максом Фофановым (компания "ДНК") из дубового сухого коряжника, джутового каната, мателлических крепежей и открытой проводки.

Под стеклом обеденного стола - памятные листовки, декоративные подушки пошиты из беговых маек.

Пол, откосы, подоконники выполнены из хвойных пород дерева и покрыты яхтнм лаком.

 

Войдите в систему, чтобы участвовать в голосовании
Рейтинг: 5.0

Комментарии

Всего: 0