Сфера дизайна
Участие в выставке: 2026 ПРОСТРАНСТВО ИДЕЙ
Номинация: административное/торговое помещение/помещение сферы услуг

Описание проекта

Концепция

Проект представляет собой гармоничное пространство для семейного отдыха и восстановления, объединяющее три ключевые функции: активный отдых (бассейн), релаксацию и оздоровление (хамам) и общение (зона барбекю).

Концепция строится на принципе «стихийного минимализма» — лаконичные формы и чистые линии подчеркиваются  натуральными материалами, игрой света и интегрированным орнаментом, отсылающим к традициям восточных бань и современному искусству. Все это управляется с помощью продуманных smart-технологий для максимального комфорта.

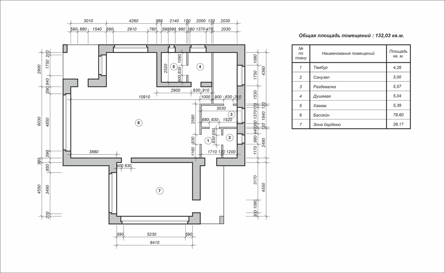
Архитектурно-планировочное решение

Пространство делится на три плавно перетекающие друг в друга зоны:

Бассейн с прямоугольной чашей и зоной отдыха, хамам-отдельный объем, купольный, связанный с бассейном через переходную комнату с душевыми, зона барбекю. Ее сердце -это печь, совмещающая в себе несколько функций.

Здесь же просторная обеденная группа.

Связь с домом осуществляется через большие панорамные раздвижные системы, стирая границу между интерьером и экстерьером.

Современные технологии (Smart-решения)

  • Система автоматической очистки и поддержания химического баланса.
  • Автоматическое жалюзийные и текстильные шторы.
  • Подогрев воды и пола.
  • Цифровая панель управления хамамом (температура, влажность, свет, пар).
  • Сценарное освещение.
  • Акустика.
  • Управление через приложение или сенсорные панели.

Орнаменты и детали 

Это ключевая фишка проекта. Орнамент не перегружает, а акцентирует пространство:

Текстиль: Подушки и пледы с этническим или современным геометрическим принтом.

Проект создает  целостную среду для современной семьи, где технологичный комфорт, эстетическая гармония и продуманный до мелочей дизайн формируют новый уровень качества жизни.

Фотограф ИВАН БЛАГУШИН

Войдите в систему, чтобы участвовать в голосовании
Рейтинг: 3.9

Комментарии

Всего: 0