Сфера дизайна
Участие в выставке: 2026 ПРОСТРАНСТВО ИДЕЙ
Номинация: квартира до 80 кв.м

Описание проекта

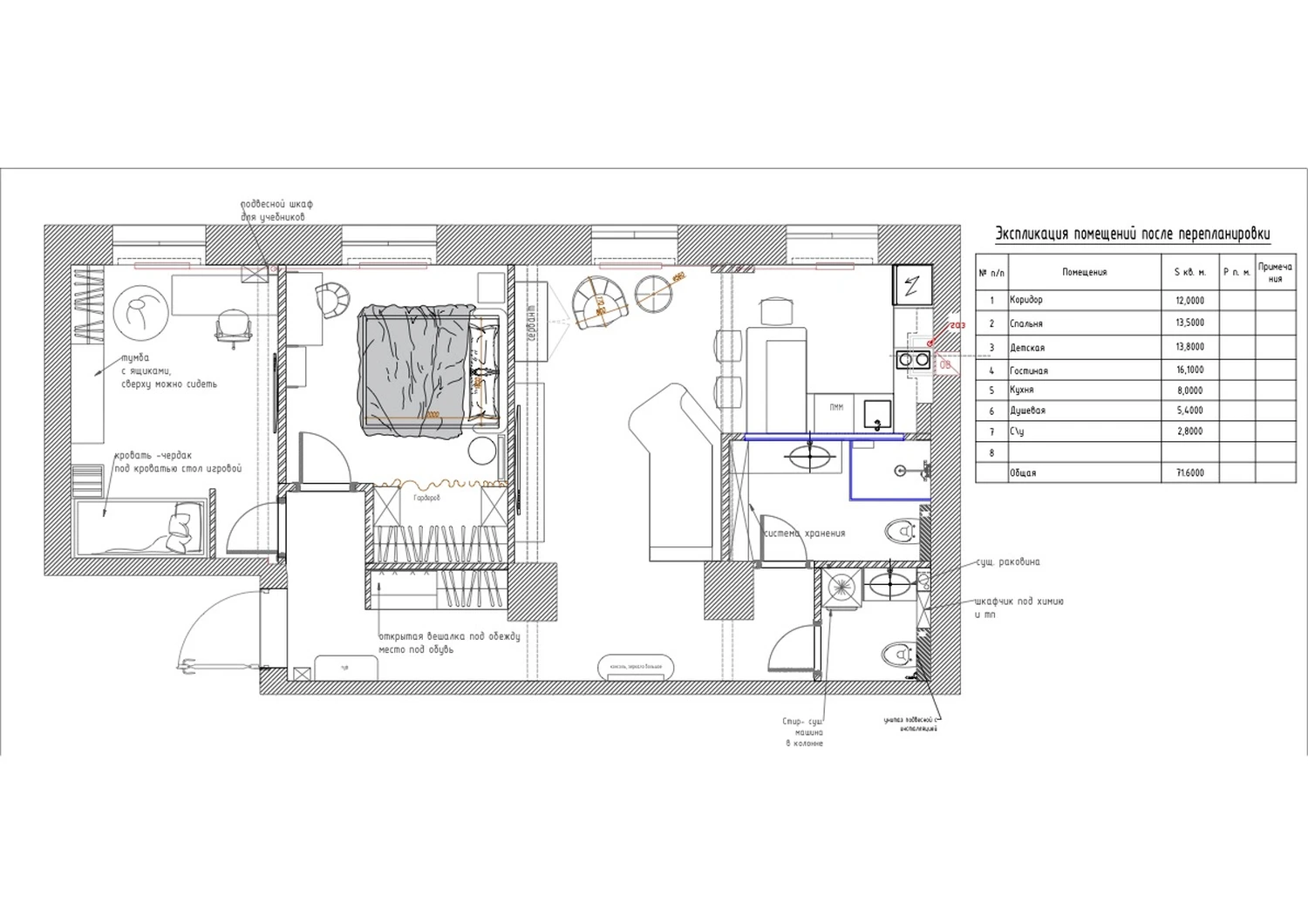
В этом проекте трёхкомнатной квартиры 1960-х годов постройки произошло удивительное смешение стилей. На 71 квадратном метре неожиданно переплелись дух сталинки, нежность хюгге и яркие элементы современности, и всё это создало уникальную атмосферу пространства.

Путь к результату был сложным, но невероятно увлекательным, и мы с радостью прошли его вместе с замечательной хозяйкой квартиры. Каждое решение проекта отражает её индивидуальность и стремление к уюту, а в воздухе витает волшебство, которое делает этот дом поистине особенным.

Фотограф Иван Благушин

Войдите в систему, чтобы участвовать в голосовании
Рейтинг: 4.1

Комментарии

Всего: 1

Альберт Чемодуров

18 фев 2026

Дизайн отличается гармонией и цельностью, подчёркивая особенности пространства.