Сфера дизайна
Участие в выставке: 2026 ПРОСТРАНСТВО ИДЕЙ
Номинация: детская

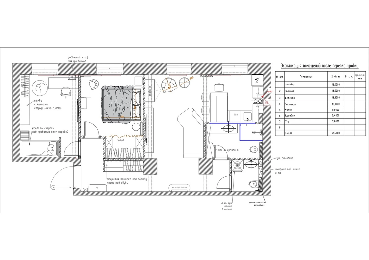
Описание проекта

В этом проекте трёхкомнатной квартиры 1960-х годов постройки произошло удивительное смешение стилей. На 71 квадратном метре неожиданно переплелись дух сталинки, нежность хюгге и яркие элементы современности, и всё это создало уникальную атмосферу пространства. Путь к результату был сложным, но невероятно увлекательным, и мы с радостью прошли его вместе с замечательной хозяйкой квартиры. Каждое решение проекта отражает её индивидуальность и стремление к уюту, а в воздухе витает волшебство, которое делает этот дом поистине особенным.

Войдите в систему, чтобы участвовать в голосовании
Рейтинг: 4.0

Комментарии

Всего: 1

Альберт Чемодуров

18 фев 2026

Пространство детской организовано логично и гибко, позволяя сочетать отдых, игру и обучение.