Сфера дизайна
Участие в выставке: 2026 ПРОСТРАНСТВО ИДЕЙ
Номинация: детская

Описание проекта

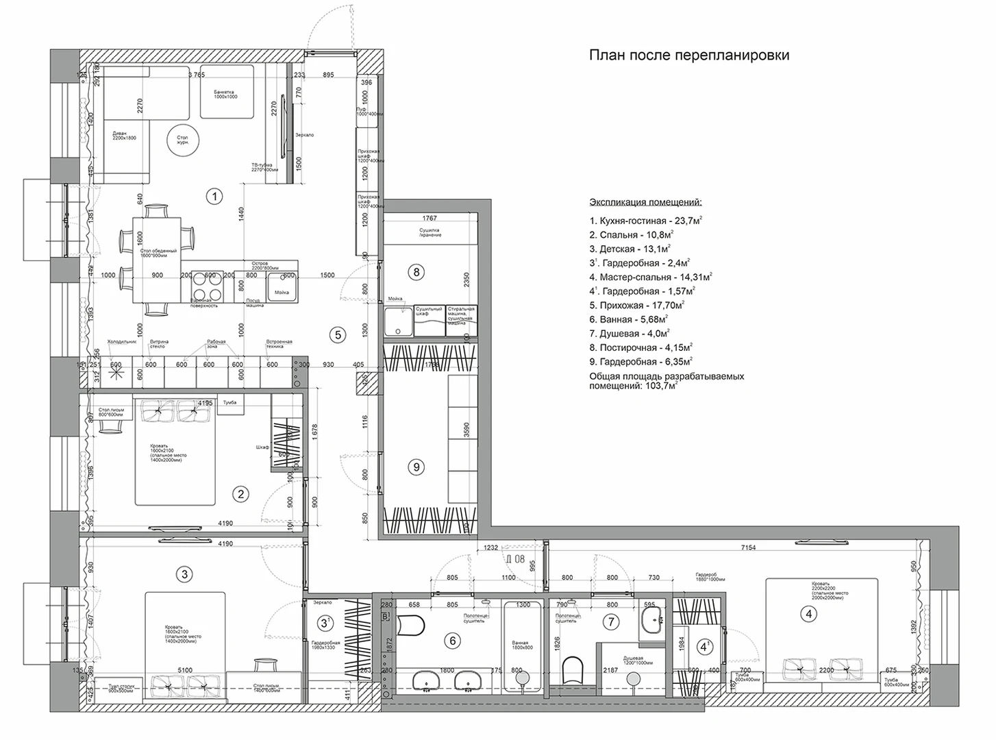
Квартира-новостройка для семьи из 4-х человек в исторической части Кирова, площадью 104 кв. м.

В комнате дочери к нейтральному фону добавлены оранжевые акценты, ярким дополнением стала картина с видами Вятки художника Сергея Перминова.

Войдите в систему, чтобы участвовать в голосовании
Рейтинг: 4.0

Комментарии

Всего: 0