Сфера дизайна
Участие в выставке: 2026 ПРОСТРАНСТВО ИДЕЙ
Номинация: гостиная

Описание проекта

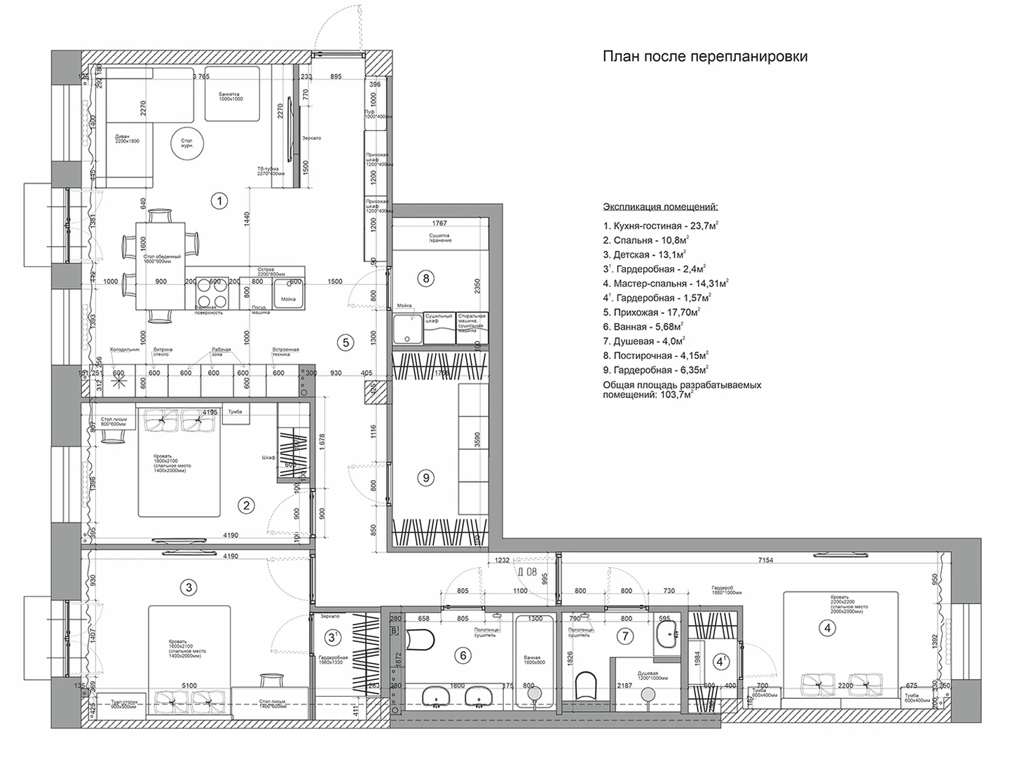
Квартира-новостройка для семьи из 4-х человек в исторической части Кирова, площадью 104 кв. м. После перепланировки удалось выделить помещение для постирочной 4 кв. м (при входе) и общую гардеробную площадью 6 кв. м, а также небольшие гардеробные в детской и мастер-спальне.

В основе дизайна этого проекта — светлые натуральные тона.

Все стены в квартире выполнены в едином декоративном покрытии, а в качестве акцента использован фактурный и насыщенный дубовый шпон, которым выделили отдельные участки стен, двери и мебель. Специально для проекта была подобрана одна партия шпона.

 

Войдите в систему, чтобы участвовать в голосовании
Рейтинг: 4.4

Комментарии

Всего: 0