Сфера дизайна
Участие в выставке: 2026 ПРОСТРАНСТВО ИДЕЙ
Номинация: жилое помещение (квартира от 80 кв.м, загородный дом, коттедж)

Описание проекта

Название «Зимородок» предполагает современные, светлые пространства с элементами природной эстетики, вдохновленные образом зимородков — птиц с необычайно красивым оперением. Сочетание блестящего зеленовато-голубого и синего верха тела, ярко-голубого надхвостья и огненно-рыжего брюшка делают птицу оригинальной и запоминающейся.

Вот и интерьер хотелось сделать таким же, создать пространство в сложных природных оттенках с применением натуральных материалов.

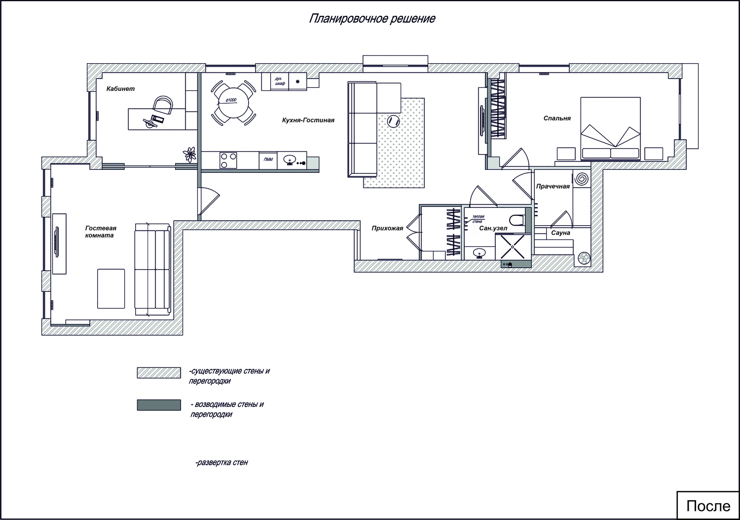
Данное пространство досталось мне в работу в свободной планировке и с высокими мансардными потолками, самая высокая точка достигала 6 метров, самая низкая — 3 метра. Пространство непростое, с большим количеством балок и перемычек, непростое, но очень интересное в работе. Открытые планировки позволяют свободно перемещаться и создают чувство свободы, а минимальное количество перегородок способствует визуальному расширению пространства. Хотелось максимально сохранить ощущение простора, но с учетом нужного функционала.

Проект квартиры разрабатывался для успешного мужчины, в котором нужно было разместить кухню-гостиную, спальню, комнату для гостей, кабинет, сауну и санузел. Заказчик любит искусство, так что предусмотреть место под серию картин и гармонично вписать их в интерьер тоже было одной из задач.

Кухня-гостиная — это сердце дома, здесь кипит жизнь, хотелось наполнить пространство удобством, уютом и цветом. Для того чтобы сохранить ощущение простора, мы не стали отделять его от входной группы и коридора, сделав ограничение только за счет напольных покрытий. Высоту подчеркиваем дверными полотнами высотой 2500 мм и рядом молдингов.

Кабинет и гостевая комната тоже объединены, но на всякий случай мы предусмотрели двери с рото-механизмом, они не крадут пространство в открытом виде и являются очень красивым элементом интерьера, когда закрыты.

Спальня — мне очень хотелось добавить туда цвет, но так, чтобы визуально изменить геометрию помещения и сделать его шире, поэтому акцентной стене быть! Чтобы расширить зону изголовья, решаем продлить ее за счет стеллажа. Использовали один цвет как на стене, так и в стеллаже. Чаще всего цвет может отличаться, так как наносится на разные покрытия, но нам повезло, и разница почти незаметна.

Сауна совмещает в себе две зоны: прачечная и сама сауна, здесь самое главное было — не перегрузить, и нам это удалось, а цвет мы внесли за счет декоративного керамогранита с красивым принтом.

Площадь 114,5 кв.м

Фотограф Иван Благушин

 

Войдите в систему, чтобы участвовать в голосовании
Рейтинг: 4.4

Комментарии

Всего: 0