Сфера дизайна
Участие в выставке: 2026 ПРОСТРАНСТВО ИДЕЙ
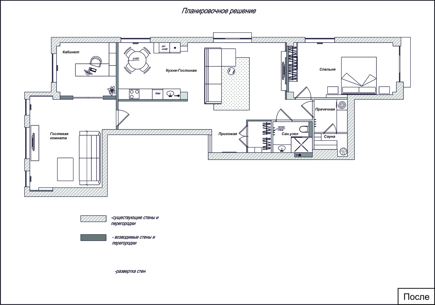
Номинация: кабинет в частном интерьере

Описание проекта

Название «Зимородок» предполагает современные, светлые пространства с элементами природной эстетики, вдохновленные образом зимородков — птиц с необычайно красивым оперением. Сочетание блестящего зеленовато-голубого и синего верха тела, ярко-голубого надхвостья и огненно-рыжего брюшка делают птицу оригинальной и запоминающейся. Вот и интерьер хотелось сделать таким же, создать пространство в сложных природных оттенках с применением натуральных материалов.

Кабинет и гостевая комната  объединены, но на всякий случай мы предусмотрели двери с рото-механизмом, они не крадут пространство в открытом виде и являются очень красивым элементом интерьера, когда закрыты.

Войдите в систему, чтобы участвовать в голосовании
Рейтинг: 4.0

Комментарии

Всего: 0