Сфера дизайна
Участие в выставке: 2026 ПРОСТРАНСТВО ИДЕЙ
Номинация: квартира до 80 кв.м

Описание проекта

Название проекта: Фактура тишины

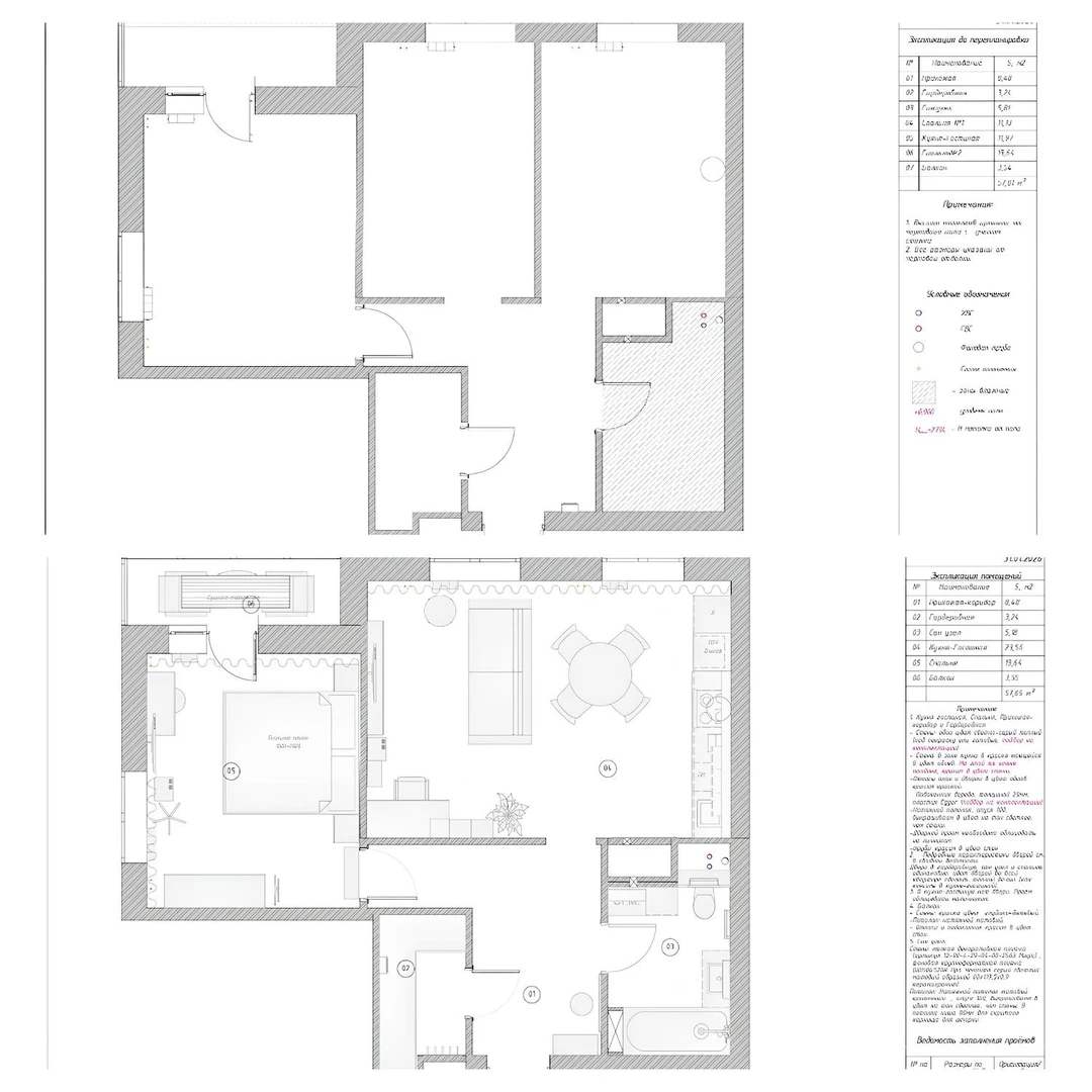
Тип объекта: Квартира до 80 м2

Формат: жилое пространство

Площадь: 57,8 м²

Год реализации: 2025

Локация: г. Киров ул. Никитская д. 229

 

Этот интерьер — про сдержанную роскошь, которая не бросается в глаза, а раскрывается в деталях. Тёплые древесные фактуры, мягкие молочные оттенки и благородная латунь создают ощущение уюта, сохраняя тишину интерьера. Пространство не стремится впечатлить мгновенно — оно приглашает остановиться, прислушаться и почувствовать внутренний ритм дома.

Здесь всё построено на балансе: светлые поверхности и глубина текстур, лаконичные формы и выразительные акценты. Архитектура интерьера становится спокойным фоном для жизни, где каждый материал и каждая линия имеют своё выверенное значение. Кухня объединена с гостиной как воплощение мечты о доме, открытом для гостей, разговоров и длинных вечеров за общим столом — пространстве, где быт соединяется с общением.

В основе проекта лежит принцип спокойной, фактурной тишины, где пространство не перегружает, а поддерживает человека. Ключевым материалом стали обои с деликатной текстурой, использованные во всей квартире как объединяющий смысловой слой интерьера. Светлая палитра работает как архитектурная основа пространства — она наполняет интерьер воздухом, задаёт ритм и становится нейтральным фоном, на котором фактуры раскрываются тонко и благородно.

Интерьер строится на нюансах: мягких переходах оттенков, тактильных поверхностях, округлых формах мебели. Акцентные картины добавляют характер, не нарушая внутреннего покоя.

Это интерьер для жизни без спешки. Проект, в котором из простых, продуманных решений складывается цельная, спокойная история дома — тёплого, гармоничного и очень личного.

 

Войдите в систему, чтобы участвовать в голосовании
Рейтинг: 4.0

Комментарии

Всего: 0